Einfamilienhaus mit Nebengebäuden und Entwicklungspotenzial in Calbe (Saale)
Hohendorfer Straße 5, 39240 Calbe (Saale)Grundlagen
- Kategorie: Einfamilienhaus
- Datum hinzugefügt: Vor 2 Monaten hinzugefügt
- Typ: zum Verkauf
- Status: Aktiv
- Schlafzimmer: 1
- Badezimmer: 1
- Zimmer insgesamt: 3
- Stockwerk: 1
- Erdgeschoss: 1
- Fläche, m²: 300 m²
- Baujahr: 1900
Beschreibung
-
Beschreibung:
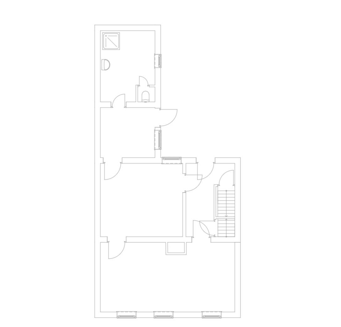
Hof Ansicht Hof Ansicht Stall 1 Stall 1 Stall 1 Stall 2 Stall 2 Eingangsbereich Flur Zimmer 1 Zimmer 2 Zimmer 3 Badezimmer Badezimmer Zugang Keller Keller Treppe zum OG Raum 1 OG Raum 2 OG Zugang Dachbodenebene Dachbodenebene Alle Beschreibung anzeigenZum Verkauf steht ein Einfamilienhaus mit großzügigen Nebengebäuden und vielseitigem Entwicklungspotenzial in attraktiver Lage von Calbe (Saale) im Salzlandkreis.
Objektdaten
-
Grundstücksfläche: ca. 300 m²
-
Wohnfläche: ca. 165 m²
-
Baujahr: ca. 1900
-
Heizungsart: Gas
-
Erschließung: voll erschlossen
Lage
Die Immobilie befindet sich in ruhiger Wohnlage von Calbe (Saale). Das direkte Umfeld ist überwiegend wohnbaulich geprägt und zeichnet sich durch eine angenehme Nachbarschaft sowie eine geringe Verkehrsbelastung aus. Durch die Lage an einer Nebenstraße ist ein ruhiges und entspanntes Wohnumfeld gewährleistet.
Ein klarer Standortvorteil ist die unmittelbare Nähe zur Autobahn A14. Dadurch erreichen Sie die Landeshauptstadt Magdeburg in etwa 30 Minuten – ideal für Berufspendler.
Zudem bestehen sehr gute Verkehrsanbindungen in Richtung Bernburg (Saale) und Schönebeck (Elbe), sodass auch die umliegenden Städte schnell und unkompliziert erreichbar sind.
Objektbeschreibung
Die Immobilie bietet ideale Voraussetzungen für Familien, Selbstständige oder Investoren, die Wohnen und Arbeiten kombinieren oder zusätzlichen Wohnraum schaffen möchten.
Die weitläufigen Nebengelasse insb. Scheunen, Werkstätten oder Lagerräume, eröffnen zahlreiche Nutzungsmöglichkeiten wie Ausbau zu Wohnzwecken oder auch als Hobbybereiche.
Zustand / Renovierungsbedarf
Das Wohnhaus sowie die vorhandenen Nebengebäude, befinden sich in einem stark renovierungs- und sanierungsbedürftigen Zustand. Die Bausubstanz entspricht überwiegend dem Baujahr bzw. späteren An- und Umbauphasen.
Insbesondere in den Nebengebäuden und dem Außenbereich besteht erheblicher Instandsetzungs-, Pflege- und Modernisierungsbedarf, abhängig von der geplanten zukünftigen Nutzung.
Das Gebäude, das Grundstück sowie die Nebengebäude befinden sich in einem teilweise beräumten Zustand. Dieser Umstand wurde bei der Preisfindung entsprechend berücksichtigt.
Das Objekt bietet großes Entwicklungspotenzial und somit Käufern die Möglichkeit, eigene Vorstellungen und Modernisierungskonzepte umzusetzen.
Hinweis zu den Grundrissen, zu der Flächenangabe und dem Energieausweis
Möblierung nur zur Veranschaulichung. Keine tatsächliche Möblierung.
Die Vermessung der Immobilie dient der Veranschaulichung. Eine Gewähr für die exakte Quadratmeterzahl wird daher nicht übernommen. Maßgeblich sind die tatsächlichen Gegebenheiten vor Ort. Gerne haben Sie im Rahmen einer persönlichen Besichtigung die Möglichkeit, relevante Maße selbst zu überprüfen.
Der Energieausweis befindet sich in Anfertigung.
Rechtlicher Hinweis
Dieses Immobilienangebot wird durch Immo-legat im Rahmen einer Maklertätigkeit vermittelt. Mit der Inanspruchnahme unserer Leistungen kommt ein Maklervertrag zustande, der einen Provisionsanspruch begründet. Ein wirksamer Maklervertrag kommt bereits zustande, sobald wir mit Ihnen oder Sie mit uns sowie ggf. mit dem Grundstückseigentümer oder dessen Bevollmächtigten (z. B. Betreuer, Nachlasspfleger) in Kontakt treten.
Alle Angaben basieren auf Informationen des Eigentümers sowie eigener Recherche. Für die Richtigkeit und Vollständigkeit der Angaben wird keine Haftung übernommen. Änderungen, Irrtümer sowie Zwischenverkauf bleiben vorbehalten. Dieses Angebot ist freibleibend.
Eine Weitergabe dieses Angebots an Dritte ist nur mit vorheriger schriftlicher Zustimmung des Vermittlers zulässig.
-
Gebäudedetails
- Keller: Im Haus
- Parken: Auf dem Grundstück
Grundrisse
- Grundrisse:






















