Freistehendes Einfamilienhaus mit großem Grundstück und Entwicklungspotenzial in Annaburg
Hofebreite 7, 06925 AnnaburgGrundlagen
- Kategorie: Einfamilienhaus
- Datum hinzugefügt: Vor 2 Monaten hinzugefügt
- Typ: zum Verkauf
- Status: Aktiv
- Schlafzimmer: 2
- Badezimmer: 1
- Zimmer insgesamt: 6
- Stockwerk: 2
- Erdgeschoss: 1
- Fläche, m²: 546 m²
- Baujahr: 1920
Beschreibung
-
Beschreibung:
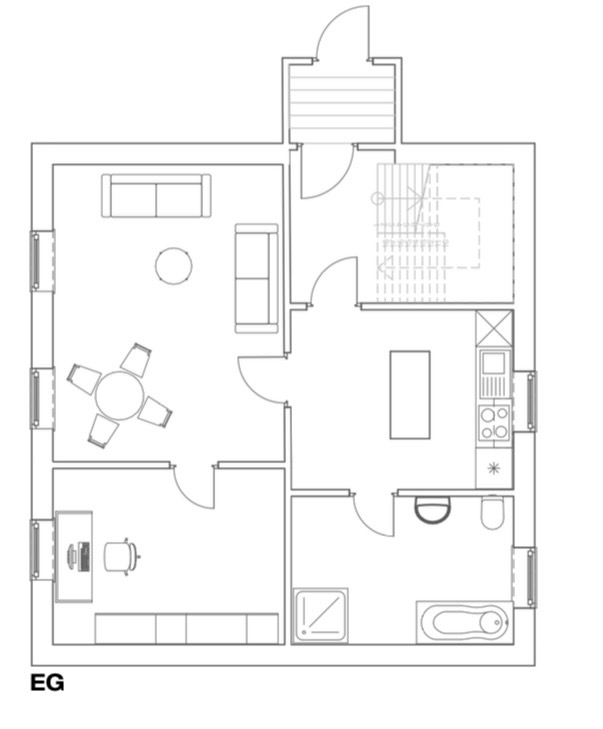
Haus Rückansicht Hof Ansicht Möglicher Stellplatz Hof Ansicht Hof Ansicht Hausansicht von hinten Schuppen 1 Schuppen 2 Schuppen 3 Hof Ansicht Grundstücksfläche Grundstücksfläche Garage Eingangsbereich Haus Flur EG Küche EG Wohnzimmer EG Arbeitszimmer EG Badezimmer EG Badezimmer EG Eingang Keller Keller Keller Keller Keller Treppenaufgang zum OG Treppenaufgang zum OG Zimmer 1 OG Zimmer 2 OG Zimmer 3 OG Zimmer 4 OG Treppenaufgang zum DG Treppenaufgang zum DG Dachgeschoss Dachgeschoss Dachgeschoss Dachgeschoss Alle Beschreibung anzeigenZum Verkauf steht ein freistehendes Einfamilienhaus mit großzügigem Grundstück und attraktivem Entwicklungspotenzial in Annaburg, im Landkreis Wittenberg.
Objektdaten
-
Grundstücksfläche: ca. 546 m²
-
Wohnfläche: ca. 110 m²
-
Baujahr: ca. 1920
-
Heizungsart: Ofenheizung
-
Erschließung: voll erschlossen
Lage
Die Immobilie befindet sich in einer ruhigen und gewachsenen Wohnlage von Annaburg. Das Stadtzentrum ist fußläufig oder bequem mit dem Fahrrad erreichbar.
In unmittelbarer Umgebung stehen verschiedene Einkaufsmöglichkeiten für den täglichen Bedarf zur Verfügung. Das Wohnumfeld ist überwiegend durch Wohnbebauung geprägt und bietet eine angenehme, nachbarschaftliche Atmosphäre.
Eine gute Verkehrsanbindung besteht über die Landesstraße 116 in Richtung Jessen (Elster). Zudem befindet sich die Landesgrenze zu Brandenburg in unmittelbarer Nähe, was zusätzliche infrastrukturelle und wirtschaftliche Verbindungen in die Region ermöglicht.
Objektbeschreibung
Das Wohnhaus überzeugt mit einer funktionalen Raumaufteilung und bietet vielseitige Nutzungsmöglichkeiten, ideal für Familien ebenso wie für alternative Wohn- oder Nutzungskonzepte.
Die vorhandenen Nebengebäude, darunter Schuppen und Garagen, schaffen zusätzliche Flächen für Lagerzwecke, Werkstatt, Hobby oder individuelle Ausbauideen.
Das großzügige Grundstück bietet attraktives Entwicklungspotenzial. Zwei separate Zufahrten direkt von der Straße sorgen für hervorragende Nutzungs- und Parkmöglichkeiten.
Zustand / Renovierungsbedarf
Das Wohnhaus sowie die vorhandenen Nebengebäude, befinden sich in einem renovierungs- und teilweise sanierungsbedürftigen Zustand. Die Bausubstanz entspricht überwiegend dem Baujahr bzw. späteren An- und Umbauphasen.
Insbesondere in den Nebengebäuden und dem Außenbereich besteht erheblicher Instandsetzungs- und Modernisierungsbedarf, abhängig von der geplanten zukünftigen Nutzung.
Das Gebäude, das Grundstück sowie die Nebengebäude befinden sich in einem teilweise beräumten Zustand. Dieser Umstand wurde bei der Preisfindung entsprechend berücksichtigt.
Das Objekt bietet großes Entwicklungspotenzial und somit Käufern die Möglichkeit, eigene Vorstellungen und Modernisierungskonzepte umzusetzen.
Hinweis zu den Grundrissen, zu der Flächenangabe und dem Energieausweis
Möblierung nur zur Veranschaulichung. Keine tatsächliche Möblierung.
Die Vermessung der Immobilie dient der Veranschaulichung. Eine Gewähr für die exakte Quadratmeterzahl wird daher nicht übernommen. Maßgeblich sind die tatsächlichen Gegebenheiten vor Ort. Gerne haben Sie im Rahmen einer persönlichen Besichtigung die Möglichkeit, relevante Maße selbst zu überprüfen.
Der Energiebedarf dieses Gebäudes entspricht der Energieeffizienzklasse H.
Dies weist auf einen hohen Energieverbrauch und einen entsprechenden Modernisierungsbedarf hin.Rechtlicher Hinweis
Dieses Immobilienangebot wird durch Immo-legat im Rahmen einer Maklertätigkeit vermittelt. Mit der Inanspruchnahme unserer Leistungen kommt ein Maklervertrag zustande, der einen Provisionsanspruch begründet. Ein wirksamer Maklervertrag kommt bereits zustande, sobald wir mit Ihnen oder Sie mit uns sowie ggf. mit dem Grundstückseigentümer oder dessen Bevollmächtigten (z. B. Betreuer, Nachlasspfleger) in Kontakt treten.
Alle Angaben basieren auf Informationen des Eigentümers sowie eigener Recherche. Für die Richtigkeit und Vollständigkeit der Angaben wird keine Haftung übernommen. Änderungen, Irrtümer sowie Zwischenverkauf bleiben vorbehalten. Dieses Angebot ist freibleibend.
Eine Weitergabe dieses Angebots an Dritte ist nur mit vorheriger schriftlicher Zustimmung des Vermittlers zulässig.
-
Gebäudedetails
- Keller: Im Haus
- Parken: Auf dem Grundstück, Garage - angeschlossen






































